Стоимость базовой модели.
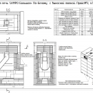
Характеристики Большой+ Печи SAMPO с Каменной выносной топкой для Бани по-Белому:
| Модель Большой+ Печи > | SAMPO | SAMPO-K | SAMPO-Кд | |
| Парилка | м3 | 40-50 | 45-55 | 55 |
| Стоимость | руб | 1 555 000 | 855 000* | 907 000* |
| Вес Печи | кг | 4725 | 4271 | 5515 |
| Материал топки | кг | Блоки | Кирпич | Кирпич |
| Каменка AISI 321 |
мм | 3 | 3 | 3 |
| Вес заклада | кг | 345-675 | 345-675 | 345-675 |
| Диаметр дымохода | мм | 180/200 | 180/200 | 180/200 |
| Длина дров | мм | до 600 | до 600 | до 600 |
| Габариты ШхГхВ |
мм | 1055х1440х2030 | 1055х1465х2030 | 1055х1715х2030 |
*Стоимость покупаемого заказчиком шамотного кирпича на месте установки Печи составляет для SAMPO-K 135 000 руб, а для SAMPO-Кд 150 000 руб.
ВИДЕО ПО УСТРОЙСТВУ ПЕЧИ SAMPO ДЛЯ БАНИ ПО-БЕЛОМУ
ВИДЕО ПО МОНТАЖУ МАЛОЙ ПЕЧИ SAMPO ДЛЯ БАНИ ПО-БЕЛОМУ
ОТЗЫВЫ И ФОТО СМОНТИРОВАННЫХ БАННЫХ ПЕЧЕЙ SAMPO
ПРЕЗЕНТАЦИЯ ПЕЧИ SAMPO И SAMPO-K ДЛЯ БАНИ ПО-БЕЛОМУ
Печи SAMPO для Бани по-Белому имеют ключевые отличия перед печами с металлической топкой для бани по-белому:
- Массивная шамотная топка, выполненная из блоков или кирпича с весом до 5500 кг.
- Расположенная внутри шамотной топки и закрытая с 5 сторон каменка из нержавеющей стали AISI 321 толщиной 3 мм не контактирует с воздухом парильного отделения
Ключевые отличия обеспечивают:
- Длительную, до 4 часов без дополнительной подтопки, стабильную температуру в парильном помещении 60–70°C.
- Мелкодисперсный пар, получаемый в течение длительного времени от паровой пушки, установленной в закрытой каменке.
- Отсутствие в парильном отделении следующих недостатков: запаха раскалённого металла в зоне конвекции воздуха и, как следствие, отсутствие канцерогенов, получаемых из-за контакта органических остатков с раскалённым металлом (эффект выжженного воздуха или сгоревшего кислорода), кроме того, устраняется попадание металлической пыли (от окалины) в воздух парилки.
Для максимального объема парилки рекомендуется использовать совместно с печью: теплоизлучатели (дымооборот), конвекторы и заклад из нержавеющих цилиндров в нижней части каменки.
Мини, малые и средние печи SAMPO предназначены для семейных бань.
Ссылка на прайс листы Печей SAMPO и SAMPO-К для Бани по-Белому
