Характеристики теплоемкой печи SAMPO - МАКСИ с хлебной печью.
Хлебная печь может располагаться спереди печи или сзади.
|
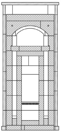
Разрез теплоемкой печи SAMPO - МАКСИ с хлебной печью
|
Отапливаемая площадь | кВт | 100 |
| Теплоотдача после протопки | часа | 36 | |
| Среднесуточная мощность | кВт | 5 | |
| Максимальная мощность | кВт | 30 | |
| Вес | кг | 2200 |
|
| Габариты топки, ШхГ | мм |
270х565 |
|
| Посадочный размер топочной дверцы, ШхВ (вариант 1) |
мм | 410х410 | |
| Внешний размер топочной дверцы, ШхВ (вариант1) |
мм | 500х500 | |
| Посадочный размер топочной дверцы, ШхВ (вариант2) | мм | 290х325 | |
| Внешний размер топочной дверцы, ЩхВ (вариант2) | 370х400 | ||
| Посадочный размер хлебной дверцы, ШхВ | мм | 410х210/280 | |
| Внешний размер хлебной дверцы ШхВ | мм | 495х340 | |
| Габариты печи, ШхГхВ | мм | 880х830х2010 | |
| Диаметр дымохода | мм | 160-180 | |
| Корпус из теплоаккумулирующего камня, толщиной | мм | 40-60 | |
| Топка из шамотных плит, толщиной | мм | 75-90 | |
| Выход дымовых газов | Вниз |
||
Преимущества теплоемкой печи SAMPO-МАКСИ перед аналогами:
Стоимость значительно ниже теплоемких печей продаваемых на территории РФ, при схожих теплотехнических характеристиках.
Сборка печи SAMPO - МАКСИ в течение двух суток, в том числе собственными силами.
Возможность установки топочной дверцы с посадочным размером 410 х 410 мм позволяет большему объему лучистого тепла попадать в помещение.


